ポートレートモード(縦置き)表示でご覧ください。

南側眺望写真(現地6階相当)

南側眺望写真(現地6階相当)

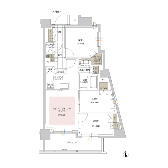
PLAN

住むほどに愛着深まる空間

都心にありながら、安らぎに包まれる日常。
ゆとりのある広さと、動線を考慮したプランニングにより、
日々の暮らしに心地よいリズムをもたらします。
暮らすほどに愛着が深まるこの場所で、
特別な時間が始まります。

都心を見晴らす、
開放的な眺望

南側眺望写真(現地6階相当)

南側眺望写真(現地6階相当)

立地概念図

立地概念図

※谷中地区地区計画/住宅地区において高さ12m、4階程度までの建築物最高限度が設けられています。

建物の南側は、第一種住居地域に加え「谷中地区地区計画」に指定され、建築高さ制限がされています。神社仏閣と穏やかな景観が調和した谷中ならではの街並みを眼下に、晴れた日には都心部まで望むことのできる、開放的な眺望を享受することができます。