オーベル月島リバージュグラン
- 所在地 東京都中央区月島3丁目
- 交通 東京メトロ有楽町線「月島」駅より徒歩5分
- 階数 地下1階付き地上15階建て
- 築年月 2001年8月
-
本物件の最新情報を知りたい方
本物件の販売情報を優先的にお知らせいたします。
ご希望の方はお申し込みください。
-
売却・買取など相談したい方
マンションの売却や買取をはじめ、
リフォームなどに関するご相談を承ります。
- お電話でのお問い合わせ
-
-
受付時間
10:00~18:00
-
定休日
火・水曜日 (祝日除く)
物件概要
-
-
駅情報
「月島」駅 徒歩5分
-
沿線情報
東京メトロ有楽町線・都営大江戸線「月島」駅
-
所在地
東京都中央区月島3-2-7
-
総戸数
126戸
-
築年月
2001年8月
-
管理会社
大成有楽不動産株式会社
-
-
-
土地種別
所有権
-
用途地域
第二種住居地域
-
構造
鉄筋コンクリート造、地下1階付き地上15階建て
-
分譲会社
有楽土地株式会社
-
施工会社
株式会社長谷工コーポーレーション
-
管理形態
全部委託・日勤
-
アクセスマップ
販売中物件
1件
-
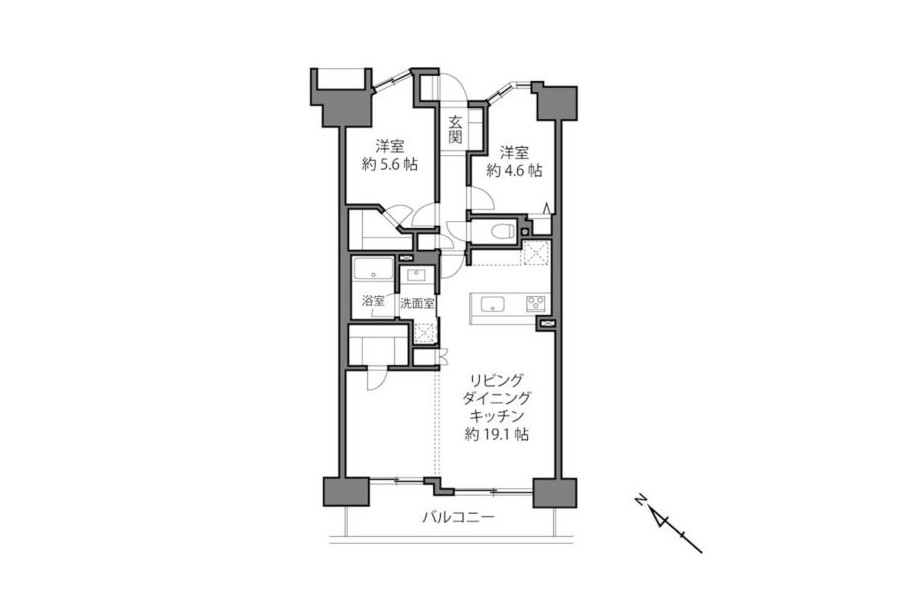
017階 / 2LDK(67.27㎡) / 12,480万円詳細を見る閉じる
- 駅徒歩5分
- 2路線利用可
- 2021年5月内装リフォーム済み
- 陽当り良好
- 床暖房・食洗機
- 浴室乾燥機
- WIC2つ完備
- オートロック
- 宅配ボックス
- 24時間ゴミ出し可能
物件概要
-
-
物件種目
中古マンション
-
販売価格
12,480万円
-
所在地
東京都中央区月島3-2-7
-
土地種別
所有権
-
用途地域
第二種住居地域
-
専有面積
67.27㎡
-
バルコニー面積
8.75㎡
-
向き
南西向き
-
間取り
2LDK
-
所在階
7階
-
管理費/月
9,070円
-
-
-
修繕積立金/月
12,590円
-
その他費用
町内会費400円/月
-
引渡日
2026年3月下旬以降
-
現況
居住中
-
媒体形態
仲介
-
情報更新日
2025/09/26
-
次回更新予定日
2025/10/10
-
備考
-
広告主
株式会社グローバル住販 〒163-0818 東京都新宿区西新宿2-4-1新宿NSビル18F 東京都知事(6)第77167号 (一社)全国住宅産業協会会員 (公社)全日本不動産協会会員 (公社)不動産保証協会会員 (一社)不動産流通経営協会会員 (公社)首都圏不動産公正取引協議会加盟
-
閉じる
- ※各種掲載情報と差異がある場合は現況優先となります。
- ※掲載の距離は現地所在棟のエントランスからの距離を示したもので、徒歩分数は80mを1分として算出(端数切り上げ)した概算時間です。
- ※掲載の電車等所要時間は通勤時の時間のもので、時間帯によって異なります。尚、所要時間については乗り換え、待ち合わせ時間を含みます。
- ※掲載物件は、掲載中に売却済、売出中止あるいは価格変更となる場合があります。(オープンルーム対象物件に関しては、開催中止や延期となる場合があります。)
- ※掲載写真に写っている眺望は将来に渡って保証するものではありません。また、周辺施設や周辺環境の写真は過去に撮影したものをそのまま利用している場合があり、名称・外観・背景等、実際のものとは異なる場合がございます。
- ※仲介物件には所定の仲介手数料(消費税相当額を含みます)が必要です。
- ※地図上に表示される物件の位置は付近住所に所在することを表すものであり、実際の物件とは異なる場合がございます。







